氣動衛生級調節閥 概述
渠工品牌ZTRS氣動衛生級調節閥適用于多種壓力、溫度、流量等物理量調節,如食品、制藥、化妝品、潔凈蒸汽、酒類、飲料、生化工業過程控制場合。食品級氣動調節閥具有結構緊湊、裝拆方便、調節精度高等優點,尤其是在壓降損失小、流量大、可調范圍廣、流量精度高,完全符合IEC534-1-1978標準,泄漏量符合ANSIB16.104標準,氣動衛生級調節閥配用不同的多彈簧執行機構,輸出力大。氣動衛生級調節閥角型設計確保閥門自排放,標準電子拋光,光滑表面確保清潔,無介質積存區域,不會產生潛在的污染。快速拆裝閥體和閥帽,使閥門打開和維修快捷容易,使過程停機時間縮短。
氣動衛生級調節閥 主要技術參數
|
公稱通徑 DN(mm) |
15 |
20 |
25 |
32 |
40 |
50 |
65 |
80 |
100 |
|
閥座直徑 dN(mm) |
15 |
20 |
25 |
32 |
40 |
50 |
65 |
80 |
100 |
|
額定流量系數KV |
線性 |
5.2 |
6.3 |
6.9 |
11.2 |
17.6 |
27.5 |
44.7 |
69.3 |
110 |
|
等百分 |
4.8 |
5.6 |
6.3 |
10.5 |
16 |
25 |
40.5 |
63.6 |
100 |
|
額定行程(mm) |
10 |
16 |
25 |
40 |
|
執行器型號 |
ZHA/B-22 |
ZHA/B-23 |
ZHA/B-34 |
|
公稱壓力 |
卡箍式、螺紋式、法蘭式(無特殊要求按卡箍式連接為準) |
|
閥蓋形式 |
標準型-17~+230℃、高溫型+230~+450℃ |
|
壓蓋型式 |
螺栓壓緊式 |
|
密封填料 |
三元乙丙橡膠、聚四氟乙烯 |
|
閥芯形式 |
單座柱塞型閥芯 |
|
流量特性 |
線性、等百分比 |
氣動衛生級調節閥 執行器技術參數
|
執行器名稱 |
ZHA/B多彈簧簿膜執行機構 |
|
執行器型號 |
ZHA/B-22 |
ZHA/B-23 |
ZHAB-34 |
|
有效面積(cm2) |
350 |
350 |
560 |
|
行程(mm) |
10、16 |
25 |
40 |
|
彈簧范圍 |
1.5~3kg/cm2(0.15~0.3MPa) |
|
膜片材料 |
乙丙橡膠夾尼龍布 |
|
氣源接口 |
RC1/4" |
|
環境溫度 |
-30~+70℃ |
|
可配附件 |
定位器、空氣過濾減壓器、保位閥、行程開關、閥位傳送器、手輪機構等 |
|
作用形式 |
氣關式(B)—失氣時閥位開(FO);氣開式(K)—失氣時閥位關(FC) |
氣動衛生級調節閥 主要零件材料
|
閥體 |
304 |
314 |
316 |
316L |
|
閥蓋 |
304 |
314 |
316 |
316L |
|
墊片 |
聚四氟乙烯(PTFE) |
|
閥內件 |
304 |
314 |
316 |
316L |
|
卡箍 |
304 |
314 |
316 |
316L |
|
填料 |
V型聚四氟乙烯(PTFE) |
氣動衛生級調節閥 主要性能指標
|
項目 |
不帶定位器 |
帶定位器 |
|
基本誤差% |
±5.0 |
±1.0 |
|
回差% |
3.0 |
1.0 |
|
死區% |
3.0 |
0.4 |
|
始終點偏差% |
氣開 |
始點 |
±2.5 |
±1.0 |
|
始點 |
±5.0 |
±1.0 |
|
氣關 |
始點 |
±5.0 |
±1.0 |
|
終點 |
±2.5 |
±1.0 |
|
額定行程偏差% |
≤2.5 |
|
泄露量L/h |
0.01%×閥額定容量 |
|
可調范圍R |
30:1 |
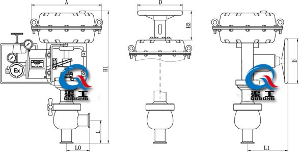
氣動衛生級調節閥 外形圖
 |
|
ZTRS氣動衛生級調節閥、食品級氣動調節閥 (外形尺寸圖) |
氣動衛生級調節閥 安裝連接尺寸
|
公稱通徑 DN(mm) |
25 |
40 |
50 |
65 |
80 |
|
L |
100 |
105 |
105 |
155 |
155 |
|
L0 |
100 |
125 |
125 |
175 |
175 |
|
H1 |
470 |
480 |
480 |
510 |
510 |
|
H3 |
180 |
180 |
180 |
236 |
236 |
|
L1 |
289 |
289 |
289 |
347 |
347 |
|
A |
282 |
22 |
282 |
360 |
360 |
|
D |
220 |
220 |
220 |
270 |
270 |
氣動衛生級調節閥 實物圖
